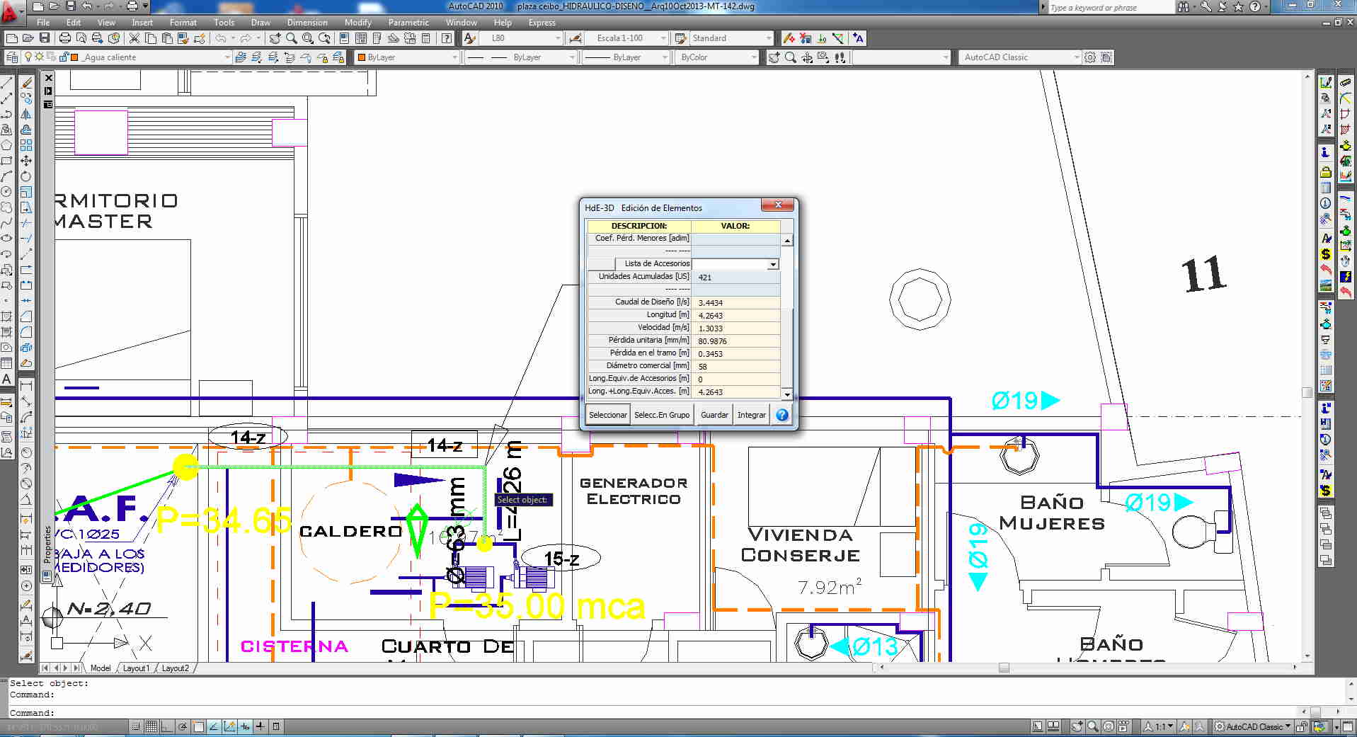
PROGRAMA PARA DISEÑO DE LA HIDRÁULICA DE EDIFICACIONES E INSTALACIONES ESPECIALES: Aplicación de alta complejidad, que consiste en un simulador de redes hidráulicas de edificios públicos, privados, centros comerciales e instalaciones especiales, que conduzcan líquidos con otros grados de viscosidad, como factorías, plantas químicas, plantas procesadoras, etc., con acabadas características visuales y técnicas que se desenvuelven por igual en el ambiente gráfico de AutoCAD de 2 o 3 dimensiones, directamente sobre los planos dibujados en pantalla, sin necesidad de intercambiar a otra aplicación. El desarrollo en 2D ha sido diseñado para dibujar las redes sobre los planos arquitectónicos tal cual son usualmente presentados; por igual puede desenvolverse en esquemas tridimensionales; realizando los cálculos y diseños, en ambos casos, e imprimiendo los parámetros hidráulicos y resultados (diámetros, longitudes, presiones estáticas y dinámicas, velocidades, caudales, pérdidas individuales y acumuladas, entre otros) en los sitios donde estos ocurren dentro de la red, pudiendo desarrollar el cálculo individualizado de múltiples sistemas en el mismo ambiente gráfico, computar listados de materiales tales como tuberías, tees, codos, etc. y luego realizar la impresión de cualquier combinación de ellos tanto a la pantalla como a la impresora.

Está desarrollada la conectividad directa con aplicaciones externas como Excel y Epanet.
Desarrollos de estos tipos no se ha visto que exista en ningún país hispano parlante desde México a Chile.
Este Simulador Hidráulico, ha sido diseñado como un compendio extra-eficiente de los innumerables textos que existen sobre el tema, que obviará las tediosas operaciones que involucra el diseño de los sistemas de agua en edificaciones, mejorándose considerablemente la competencia del ingeniero y disminuyendo al mínimo los errores humanos. Dada la base científica de Darcy-Weisbach y Colebrook-White en que está enmarcado el proyecto, nos permite aplicarlo tal cual, con cualquier otro líquido Newtoniano (alcohol, gasolina, etc) y régimen de flujo, así como materiales de las tuberías, puesto que todos los parámetros de viscosidad, rugosidad y demás, pueden ser individualizadas para cada parte de la red. Todos los cálculos que se realiza son internos, no se necesita en absoluto la intervención de tablas, ábacos u otros. Permite simular todo tipo de aparatos sanitarios estándar e incluso generar nuevos tipos, aplicar caudales tanto fijos, como el de incendios u otros, y caudales probabilísticos, para lo cual se ha incorporado un algoritmo basado en la teoría cargas sanitarias elaborado por el Doctor Roy B. Hunters ajustada a los actuales avances tecnológicos. La aplicación es totalmente parametrizable y altamente personalizable, incluyendo la capacidad de visualizar los datos y resultados en los elementos donde estos ocurren, por rangos de color a exhibirse en pantalla o en la impresión, de tal manera que el usuario pueda establecer donde se producen picos muy altos o bajos, para que se tomen las medidas correctivas.